ID : SCCJ355141
Pentru Inchiriere 650 EURO
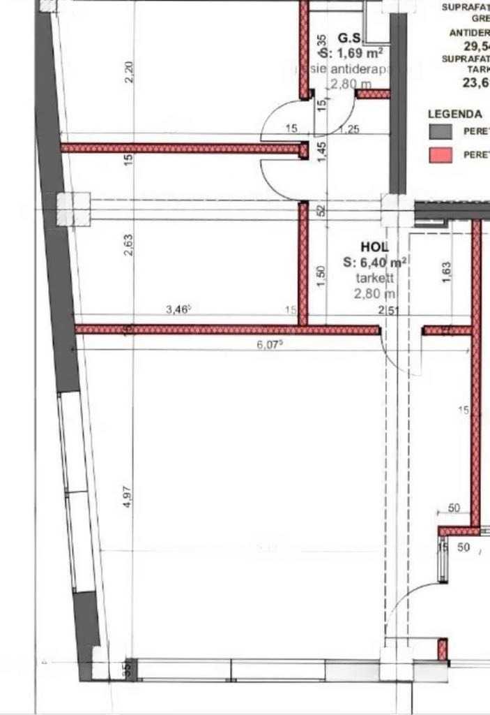
EDIL vă oferă spre închiriere un spațiu comercial situat în Cluj-Napoca, în cartierul Someșeni, în apropierea Băilor Someșeni. Spațiul are o suprafață utilă de 55 mp și este compartimentat practic în trei încăperi, un hol și un grup sanitar, oferind flexibilitate pentru diverse tipuri de activități comerciale.Dispune de vitrină la stradă, asigurând o vizibilitate foarte bună, ferestre și ușă din termopan, iar finisajele moderne includ faianță, gresie și linoleum. Starea interioară este bună, iar confortul termic este garantat de centrala proprie.Datorită poziționării avantajoase, aproape de mijloacele de transport în comun și într-o zonă cu vizibilitate ridicată, spațiul este potrivit pentru activități precum salon de înfrumusețare, cabinet medical, birou sau alte servicii comerciale.Proprietatea va fi disponibilă începând cu 1 ianuarie 2026.Pentru mai multe informații sau pentru programarea unei vizionări, vă invităm să ne contactați telefonic sau să ne vizitați la sediul EDIL, Str. Iuliu Maniu, nr. 13, ap. 6, Cluj-Napoca. SCCJ355141
Detalii suplimentare
- An constructie : Inainte de 1990
- Nemobilat
- Gresie
- Faianta
- Tip ferestre: Termopan
- Incalzire: Centrala proprie
 
                 
                             
                             
                             
                             
                             
                             
                             
                             
		 
		 
		 
                         
                        